Villa Arnaldi
La villa Arnaldi est une villa de Andrea Palladio sise à Meledo, un hameau de la commune de Sarego, dans la province de Vicence et la région Vénétie en Italie.
À première vue, il peut paraître surprenant de ranger aux côtés des grandioses villas palladiennes ce modeste édifice, manifestement inachevé et aujourd'hui en mauvais état. En réalité, la villa Arnaldi est le précieux témoignage d'un processus qui, habituellement, est seulement visible aux résultats finaux : la transformation d'un édifice préexistant en une nouvelle architecture.
Historique



En 1547, Vincenzo Arnaldi, l'un des plus riches et influents aristocrates vicentins, commande à Andrea Palladio la restructuration d'un complexe agricole du XVe siècle, acquis tout récemment par lui. La raison est pour ainsi dire utilitaire : les améliorations du bâtiment doivent servir à en augmenter sa valeur en vue d'un procès avec un des précédents propriétaires. En 1565, lorsqu'un accord est trouvé, Vincenzo interrompt les travaux et loue la maison sans plus se soucier de leur finalisation.
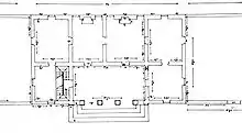
Dans une série de dessins de Palladio, il est possible de suivre ses tentatives afin d'intervenir sur cette propriété irrégulière du XVe siècle. Il cherche à régulariser les édifices donnant sur la cour et à retrouver une symétrie dans la nouvelle disposition des pièces de la maison, qu'il organise autour d'une loggia à triple arcades, avec de petites ouvertures rectangulaires sur les côtés, toujours existantes mais désormais bouchées; enfin, il encadre les fenêtres de ses habituelles moulures.
Voir aussi
Bibliographie
- Andrea Palladio, Les Quatre Livres de l'architecture (I Quattro Libri dell'Architettura), 1570 . La traduction française de Roland Fréart de Chambray (1641), transcrite en français moderne, est disponible chez Flammarion (1980 et 1997) (ISBN 2-0801-0218-4)
Articles connexes
Sources
- (it) Cet article est partiellement ou en totalité issu de l’article de Wikipédia en italien intitulé « Villa Arnaldi » (voir la liste des auteurs) dans sa version du 29 novembre 2008. Il est lui-même issu du texte relatif à la villa Arnaldi, sur le site du CISA, http://www.cisapalladio.org, lequel a autorisé sa publication (cf
tkt #2008031210017761)
Notes et références
- Portail de l’architecture et de l’urbanisme
- Portail de la Renaissance
- Portail de la Vénétie