Le Châtelet de Gourzon
Le Châtelet de Gourzon est un site archéologique situé à Bayard-sur-Marne, dans le nord de la Haute-Marne, à proximité de Fontaines-sur-Marne, entre Saint-Dizier et Joinville. Il occupe un plateau d'une vingtaine d'hectares et s'étend en contrebas sur la commune de Fontaines-sur-Marne. Le plateau, accessible seulement en deux points à l'ouest et à l'est, surplombe la vallée de la Marne. Le site a connu des occupations successives, au Néolithique, à l'Âge du bronze, puis, de manière continue, de l'Âge du fer au Haut Moyen Âge. Le plateau du Châtelet est actuellement sous couvert forestier.
Historique
Le site archéologique du Châtelet est exploré depuis la fin du XVIIIe siècle. Les principales fouilles de cette époque ont été réalisées de 1772 à 1774 par Pierre Clément Grignon.
Le Châtelet retrouvé – les fouilles de Grignon
Au XVIIIe siècle, le maitre de forges des usines voisines de Bayard-sur-Marne, Pierre-Clément Grignon, érudit et passionné, organise les fouilles de la colline. Il a souvent remarqué d’importants débris de pierres aux formes diverses, des restes de briques, et a conclu à l’ancienneté du site (« un lieu jadis habité et détruit », in Dissertations).
En 1772, il entreprend les premières fouilles, faites de façon très méthodique : elles sont précédées de sondages et donnent lieu à des rapports détaillés. Ces exposés sont un ensemble de faits et de constatations, loin des interprétations parfois poétiques des découvreurs de l’époque : c’est une première dans l’archéologie française qu’un site soit fouillé d’une façon méthodique, scientifique et analytique.
Ces travaux vont vite intéresser l’Académie des Inscriptions et Belles-Lettres et Grignon va poursuivre ses campagnes de recherche grâce à un financement octroyé par le roi Louis XV. Les fouilles du Châtelet de Gourzon sont donc les premières fouilles subventionnées de France.
Les fouilles du XIXe au XXIe siècle
Après l’important travail mené par Grignon, d'autres archéologues ont poursuivi son œuvre :
- L’abbé Gélin – travaux sur l’aqueduc et la nécropole,
- L’abbé Fourot,
- Régis Colson,
- Yvon Gaillet,
- Louis Lepage – plusieurs campagnes sur la ville elle-même.
À l’heure actuelle, le site est entièrement envahi par la végétation. Les fouilles successives n’ont dégagé qu’une infime partie de la ville (quelques hectares sur les 24 hectares du plateau). Une étude est en cours avec la méthodologie Lidar.
Préhistoire
Les fouilles ont livré quelques objets du Néolithique (outils et armes), mais c'est à partir de l'Âge du bronze (2200 à ) que l'habitat se développe sur la colline du Châtelet. Cette période a livré une hache avec anneau, des outils, des couteaux, poignards et épingles.
Le développement de la métallurgie du fer, minerai largement présent dans la région, favorise l'essor économique du site au Hallstatt final et au début de la Tène : c'est l'époque gauloise. Sur l'oppidum, les Gaulois édifient des constructions quadrangulaires (à quatre poteaux).
Le Châtelet, situé dans la partie occidentale du territoire du peuple gaulois des Leuques, devient un centre d'échanges commerciaux, comme en témoigne son inventaire numismatique. L'oppidum est situé à proximité du territoire des Rèmes et de celui des Lingons. Il contrôle probablement la circulation humaine dans la vallée de la Marne.
Période romaine
Durant l'époque romaine, le plateau du Châtelet accueille une importante agglomération secondaire du peuple des Leuques, située à une vingtaine de kilomètres à l'ouest de la ville de Nasium. L'ensemble du plateau, environ 24 hectares, semble alors entièrement occupé.
Topographie de l'agglomération romaine
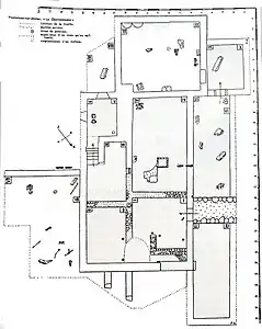
Les plans de fouilles du XVIIIe siècle montrent un urbanisme caractéristique des bourgades rurales de la Gaule romaine, avec un centre public jouxtant une place, entouré de nombreuses maisons groupées en ilots, séparées par des rues plus ou moins bien quadrillées et rectilignes. Les nombreuses carrières du secteur (les sites gallo-romains de Brauvilliers, à quelques kilomètres) permettent la construction de la ville.
Au milieu du site a été dégagé un temple de type gallo-romain, ou fanum, avec une cella d'environ 65 m2 et des thermes chauffés par un système d'hypocauste.
Les fouilles ont permis de mettre au jour de nombreuses maisons avec cours, caves à édicules, puits ou citernes. Le matériel archéologique est dense : mosaïques, bas-reliefs, sculptures, colonnes, vases, bijoux divers et monnaies de différentes époques. À l'opposé, les fouilles ont dévoilé le quartier artisanal, dont les activités étaient principalement axées sur la poterie et la transformation du fer (ateliers de forgeron, serrurier ou cloutier). Les travaux de fonderie devaient probablement se faire plus en retrait, dans la vallée.

L'environnement péri-urbain
À l'est de l'agglomération, le long de la voie en direction de Nasium, des fouilles réalisées au milieu du XIXe siècle ont permis de dégager un ouvrage hydraulique romain, constitué d'un conduit souterrain possédant des puits de service tous les 6,21 mètres. L'exutoire, fortement restauré, est encore visible (la photo ci-contre en montre l'entrée). Les restes de l'aqueduc ont été classés au titre des monuments historiques en 1883[1]. Les recherches récentes montrent qu'il ne s'agit pas d'un aqueduc classique captant une source, mais d'un qanat, qui capte les eaux de la nappe phréatique.
La ville de Châtelet de Gourzon était à la croisée de deux voies romaines : celle, probable, de la vallée de la Marne (Langres à Perthes) et surtout celle de Segessera (Bar-sur-Aube) à Nasium (Naix-aux-Forges). Ces voies étaient d'importance moyenne mais facilitaient les échanges commerciaux avec les autres régions de la Gaule.
À la sortie de la ville, le long de la voie romaine menant à Nasium, encore bien visible aujourd'hui, des fouilles ont permis de mettre au jour quelques nécropoles.
À proximité du site, quelques villas ont été découvertes. Elles approvisionnaient la ville en produits agricoles.
Antiquité tardive et époque mérovingienne
Lors des grandes incursions barbares des IIIe et IVe siècles, la cité est partiellement détruite (de nombreuses traces d'incendies datés de cette époque en témoignent). Le site est cependant toujours occupé à l'époque mérovingienne. Deux nécropoles, situées sur le plateau et au pied de son versant oriental, témoignent de l'importance du site à cette époque.
Le site semble décliner à la fin de l'époque mérovingienne, peut-être au profit du site d'Olonna / Saint-Dizier, qui apparaît dans les sources au IXe siècle.
Temple découvert par Grivaude de la Vincelle.
Plan d'une nécropole par l'abbé Gélin.
La déesse Épona.

Fibules de grenats et d'argent.
Boucles de ceinture.
Bagues présentées au musée municipal de Saint-Dizier.
Notes et références
- « aqueduc », notice no PA00079059, sur la plateforme ouverte du patrimoine, base Mérimée, ministère français de la Culture
Voir aussi
Bibliographie
- Pierre-Clément Grignon :
- Dissertations sur les ruines de la ville du Châtelet, en Champagne – BNF, 1772
- Bulletin des fouilles faites par ordre du roi d’une ville romaine sur la petite montagne du Châtelet, entre Saint-Dizier et Joinville-en-Champagne, 1774
- Second Bulletin des fouilles faites par ordre du roi d’une ville romaine sur la petite montagne du Châtelet, entre Saint-Dizier et Joinville-en-Champagne , 1775
- Abbé Auguste Fourot, « L'oppidum du Châtelet avec plan des fouilles de Grignon et chromolithographies représentant les principaux objets trouvés au Châtelet », Mémoires de la Société des lettres, des sciences, des arts, de l'agriculture et de l'industrie de Saint-Dizier. Années 1885 et 18865, t. IV, , p. 1-104 (lire en ligne)
- Louis Lepage :
- La Ville gallo-romaine du Châtelet. Les fouilles du XVIIIe siècle, Tome 1, éditions CERPHM, 1990
- La Ville gallo-romaine du Châtelet. Les fouilles du XIXe et XXe siècles, Tome 2, éditions CERPHM, 1991
- Les fouilles du Châtelet de Gourzon (Haute-Marne, France) au XIXe siècle. Travaux réunis par Louis Lepage, 1992.
Liens externes
- Ressource relative à la géographie :
- Portail de la Préhistoire
- Portail de l’archéologie
- Portail du monde celtique
- Portail de la Rome antique
- Portail des monuments historiques français
- Portail de la Haute-Marne