Hôtel de Villemaré
L'hôtel de Villemaré ou hôtel de Joubert est un ancien hôtel particulier situé au no 9, Place Vendôme dans le 1er arrondissement de Paris.
Il est construit de 1706 à 1716, pour le financier Jean Bonaventure Le Lay de Villemaré, par l'architecte Jean-Baptiste Bullet de Chamblain.
Depuis 2016, il est la propriété de la banque centrale de Norvège, qui l'acquiert pour 1 milliard d'euros[1].
Il abrite notamment les boutiques des maisons Jaeger-LeCoultre et Rolex.
Situation
L'hôtel est situé au sud-ouest de la place et est mitoyen de l'hôtel Le Bas de Montargis au no 7 et de l'hôtel de Simiane au no 11.
Historique
De la construction de la place à celle de l'hôtel

Le , Jules Hardouin-Mansart acquiert auprès de la ville de Paris les terrains correspondant au no 7 et au no 9. La parcelle mesure alors 433 toises.
Le , il vend ces deux lots à son gendre Claude Lebas de Montargis, qui revend le , la parcelle du no 9 à Jean Bonaventure Le Lay de Villemaré, qui fait construire l'hôtel, de 1708 à 1716, par l'architecte Jean-Baptiste Bullet de Chamblain.
L'hôtel sous l'Ancien Régime
Le Lay de Villemaré meurt le et c'est son fils, Jean-Bonaventure Le Lay de Guébriant, qui hérite de sa fortune et de l'hôtel[2].
Le , il loue l'hôtel à Pierre-Charles de Villette, secrétaire du roi et trésorier général de l'Extraordinaire des Guerres pour un bail de neuf années consécutives à compter du pour un loyer de sept mille cinq cents livres[3]. Il convient néanmoins de préciser qu'un plan de la Chancellerie de 1747[4] repris dans divers ouvrages et notamment par F. de Saint-Simon dans son livre sur la place Vendôme, indique que l'hôtel est loué dans le même temps à la duchesse d'Antin, à savoir Françoise Guillonne de Montmorency-Luxembourg[5], petite-fille par alliance de Madame de Montespan dont elle avait épousé le petit-fils, Louis. Peut-être s'agit-il là d'une confusion ou d'une location précédant celle de Pierre-Charles de Villette.
Le , à son retour de Cologne, Le Lay de Guébriant vend l'hôtel, meubles compris, pour 260 000 livres à François-Balthazar Dangé[6]. Ce dernier fait exécuter quelques travaux, notamment la réfection d'une partie des lambris de l'hôtel par Jean-Baptiste Oudry.
Il lui commande notamment un cabinet des Fables sur le thème des Fables de La Fontaine dont il reste quelques fragments aujourd'hui au Musée des arts décoratifs de Paris. Ce cabinet se trouve au premier étage de l'hôtel, occupé par les appartements de l'épouse du maitre des lieux, Anne Jarry.
Ce dernier occupant quant à lui l'entresol. L'appartement de Anne Jarry est donc sensiblement plus grand que celui de son époux, en partie tronqué par la rotonde du rez-de-chaussée sur laquelle débouchait la porte cochère. Il existe également une minute[7] faisant part de la volonté de François-Balthazar Dangé de réquisitionner une partie des terrains de ses voisins afin d'agrandir l'aile en retour d'angle de l'hôtel. Néanmoins, la construction n'est pas avérée.

Un peu plus d'un an après la mort de François-Balthazar Dangé le , l'hôtel est à nouveau vendu par son neveu René-François Dangé, maréchal des camps et armées du Roi en la ville de Loches, pour la somme de 300 000 livres au trésorier des États du Languedoc Philippe-Laurent de Joubert[8].
Ses héritiers cèdent l'hôtel à l’État pour 300 000 livres le 24 germinal an II (), prix auquel de Joubert l'avait acquis. L'hôtel est loué au banquier Paulin à partir de 1797[9] puis en 1791 à M. de Castellan.
Le XIXe siècle, propriété de l'État
Sous la Convention, l'État y regroupe tout d'abord le conseil de la liquidation de la dette publique dont une partie se trouvait auparavant au no 15. Ses directeurs, Louis-Valentin Denormandie puis Jacques Defermon, occupent alors l'hôtel.
Sous le Premier Empire, la dette est supprimée et l'hôtel devient la résidence de l'intendant du domaine de la Couronne impériale, Defermon lui-même.
Sous la Restauration, l'hôtel est inscrit parmi les biens de la Couronne. Defermon est remplacé par le baron Eugène François d'Arnauld de Vitrolles, jusqu'en 1816.
En 1818, l'hôtel devient la résidence du grand veneur de France, personnage ayant la charge des chasses royales. C'est le duc de Richelieu qui occupe cette charge à partir de 1819. Son successeur, à partir de 1824, sera le maréchal Jacques Alexandre Law de Lauriston. Ce dernier est fait ministre d’État le . Il continue à occuper la fonction jusqu'à sa mort.
Après la Révolution de Juillet, le comte Camille de Montalivet, devient administrateur de la liste civile et réside dans l'hôtel. Lui succèdent provisoirement durant la période où il occupe le ministère de l'Intérieur dans le premier gouvernement Thiers, Agathon Jean François, baron Fain, puis lorsqu'il occupe le même poste dans le second gouvernement Molé, le comte Taillepied de Bondy. Le , Camille de Montalivet récupère sa charge d'administrateur de la liste civile et la conserve jusqu'à la révolution de 1848.
Sous la Deuxième République, le , l'hôtel devient le quartier général de la première division militaire et de la Garde nationale. C'est le général Changarnier, qui est aux commandes de la division et devient locataire de l'hôtel.
Le Second Empire ayant rétabli la charge de grand veneur, l'hôtel en redevient sa résidence. Le premier locataire est le maréchal Magnan. À la mort de ce dernier, c'est le maréchal Canrobert qui hérite de la charge.
Durant la Commune, l'hôtel est miraculeusement préservé. Le gouvernement révolutionnaire fait apposer des scellés sur les appartements, que les insurgés n'osent alors, pas briser. Ces derniers occupent néanmoins le reste du bâtiment dans lequel est installé un magasin d'habillement.
En 1870, sous la Troisième République, le département de la Guerre reprend possession de l'hôtel et y installe en 1880 le gouvernement militaire de la ville de Paris. L'état-major se trouve quant à lui au no 7. En 1898, le gouvernement militaire et l'état-major s'installent à l'hôtel des Invalides.
Le , l'hôtel est vendu à l'Union des assurances de Paris, pour la somme de 1 600 100 francs. Auparavant, le musée du Louvre en récupère certains lambris jugés de qualité remarquable, sous l'impulsion d'Émile Molinier, conservateur des objets d'art au musée.
Époque contemporaine
En 1996, l'Union des assurances de Paris entre dans le giron d'Axa.
De 2006 à 2015, le cabinet d'avocats Clifford Chance siège dans l'hôtel de Villemaré[10].
Le rez-de-chaussée est aujourd'hui occupé par les boutiques des maisons d'horlogerie Jaeger-LeCoultre et Rolex.
L'hôtel
Structure


La parcelle de l'hôtel, qui mesure un peu plus de la moitié des 1 683 m2 de la parcelle d'origine (qui englobait les 7 et 9 place Vendôme), est constituée de trois zones. Sur la place s'élève un corps de logis principal en double profondeur. Il est bordé, à l'arrière, par une vaste cour, et est complété par une aile en retour d'angle de treize croisées longeant le côté gauche de la parcelle jusqu'à son extrémité et terminée par une terrasse.
Rez-de-chaussée de l'hôtel
Le rez-de-chaussée de l'hôtel est composé uniquement d'espaces de commun. Il se structure, pour le corps de logis principal, en deux parties, séparées par la croisée centrale donnant sur la place, où se situe la porte cochère. Celle-ci débouche dans une rotonde qui mène à la cour intérieur de l'hôtel.
Dans la partie à gauche de la porte cochère se trouvent les cuisines de l'hôtel et le garde-manger. Dans la partie droite, se trouvent principalement la loge du portier, une salle dans laquelle se trouvait un réservoir d'eau (pour le bain) ainsi qu'un escalier de dégagement desservant l'intégralité de l'hôtel.

Entresol
L'entresol de l'hôtel est très vite utilisé comme appartement par les propriétaires. François-Blathazar Dangé y fait installer le sien quand sa femme, Anne Jarry, occupe le premier étage.
Desservi par l'escalier d'honneur de l'hôtel, l'entresol se compose d'une antichambre circulaire donnant sur une vaste bibliothèque communiquant elle-même sur un cabinet-bibliothèque. Se trouve ensuite une chambre à alcôve, celle qu'occupe François-Balthazar Dangé lorsqu'il habite l'hôtel. Cette chambre mène à un escalier de dégagement desservant l'ensemble des niveaux de l'hôtel. En face, se trouve une autre chambre, occupé lors de l'époque de Dangé par "Mlle Garnier"[11].
Le cabinet-bibliothèque de l'appartement de Dangé est aujourd'hui conservé au musée du Louvre. Il est démonté en 1898, à la demande d’Émile Molinier. Cette partie de l'hôtel reste par la suite, à usage d'appartement lorsque l'hôtel devient propriété de l’État et est transformé en bureaux.
Si l'entresol du corps de logis principal nous est particulièrement bien connu, puisque s'y trouve l'appartement de François-Balthazar Dangé que la succession, l'inventaire après décès et la vente de l'hôtel à Philippe-Laurent de Jouvert détaillent minutieusement, ce n'est cependant pas le cas de l'aile de l'hôtel pour ce niveau. En effet, seule la succession de François Dangé évoque cette zone de l'édifice pour y décrire sept pièces sur dix travées desservies par un corridor longeant le mur mitoyen avec l'hôtel Lebas de Montargis. Ces pièces sont occupées par des zones de commun.

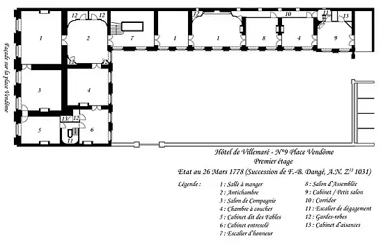
Premier étage
Le premier étage sert quant à lui d'appartement à Anne Jarry, épouse de François-Balthazar Dangé. Par la suite, il est transformé comme le reste de l'édifice en bureaux.
Le premier étage du corps de logis est notamment composé d'un cabinet dit des Fables. Ce cabinet est peut-être réalisé par l'artiste Jean-Baptiste Oudry. Il s'inspire du thème des Fables de La Fontaine, dont des représentations sont peintes sur les lambris du cabinet. Ce cabinet, démonté tout comme le cabinet-bibliothèque de l'entresol, est aujourd'hui exposé au musée des Arts Décoratifs de Paris.
Il se trouve à l'origine dans la pièce occupée par la cinquième travée donnant sur la place Vendôme et constitut le boudoir d'Anne Dangé. Le décor du boudoir est composé de 12 fables, 2 sur toiles en dessus-de-porte (Le Cheval et le Loup, Le Cerf malade), 10 peintes directement sur les boiseries (Le Corbeau et le Renard, Le Coq et la Perle, Le Lion et l'Âne chassant, Le Loup plaidant contre le Renard par devant le Singe, Le Cerf se voyant dans l'eau, La Grenouille et le Rat, Le Lièvre et les Grenouilles, Les deux Taureaux et une Grenouille, L'Aigle, la Laie et la Chatte, La Lice et sa Compagne). Le Cerf malade, présent en 1898 lors du démontage du décor, a disparu et est actuellement remplacée par une réalisation du XIXe siècle, Le Loup devenu berger. Cependant, un doute subsiste sur l'authenticité du Cerf malade, car cette fable n'entre pas dans les six premiers livres des Fables dont sont issues toutes les autres scènes du décor.
Le reste de l'étage est composé de l'appartement d'Anne Jarry proprement dit avec antichambre, chambre et cabinet. S'y trouvent également une salle à manger donnant sur la place ainsi qu'un salon de compagnie. Dans l'aile, deux salles à manger auxquelles succèdent un autre appartement avec salon, chambre et cabinet. Ce dernier appartement est également démonté à la vente de l'hôtel et se trouve aujourd'hui au musée du Louvre.
Notons également la seconde salle à manger de l'aile, particulièrement grande et fastueuse. Elle possède une vaste table de pierre contre le mur, agrémenté de deux fontaines, de pilastres et en son centre d'une niche occupé par un antique[12]. La première salle à manger est quant à elle plus intime, en témoigne la présence non pas d'une cheminée mais d'un poêle encastré dans le mur[12].


Références
- « Un immeuble de la place Vendôme à Paris vendu 1 milliard d'euros », sur BFM Immo, (consulté le )
- Testament de Jean-Bonnaventure Lelay de Villemaré, Archives Nationales, Minutier central, XCVII, 282, 12 juillet 1740.
- Bail, 28 octobre 1747, Archives Nationales, Minutier central, XCVII, 314, 28 octobre 1747.
- Plan de la Chancellerie, Archives Nationales, O1 1551.
- F. de Saint Simon (préf. duc de Castries), La Place Vendôme, Paris, Éditions Vendôme, , p. 228
- Vente de l'Hôtel de Villemaré, Archives Nationales, BB305182.
- Réquisition de l'agrandissement de l'aile de l'hôtel de Villemaré, Archives Nationales, Minutier central, LXXXVII, 1019, 29 mars 1753.
- Vente de l'Hôtel de Villemaré par René-François Dangé à Philippe-Laurent de Joubert, Archives nationales, Et. LXXXVII, 1174.
- F. de Saint Simon (préf. duc de Castries), La Place Vendôme, Paris, Éditions Vendôme, , p. 231
- « Clifford Chance emménage au 1 rue d'Astorg à compter du 11 mai 2015 », communiqué de presse, cliffordchance.com, 15 avril 2015.
- David Langeois, « L'appartement du fermier général François-Balthazar Dangé en son hôtel de la place Vendôme à Paris », dans Collectif, Objets d'arts : Mélanges en l'honneur de Daniel Alcouffe, Paris, Faton, , p. 257
- Succession de François-Balthazar Dangé, estimation, le , Archives Nationales, Z1J 1031.
Voir aussi
Bibliographie
- Jacques Hillairet, Dictionnaire historique des rues de Paris, Paris, Les Editions De Minuit, , p. 611-613

- Fernand de Saint Simon (préf. duc de Castries), La Place Vendôme, Paris, Éditions Vendôme, , p. 227-234

- David Langeois, « L'appartement du fermier général François-Balthazar Dangé en son hôtel de la place Vendôme à Paris », dans Collectif, Objets d'arts : Mélanges en l'honneur de Daniel Alcouffe, Paris, Faton, , p. 253-259

: document utilisé comme source pour la rédaction de cet article.
Sources primaires
- Visite de la place Louis-le-Grand par Pierre-Jules Delespine et Pierre Lemaistre, architectes du roi et membres de l'Académie Royale d'Architecture, Archives Nationales, Z1J460.
- Testament de Jean-Bonnaventure Lelay de Villemaré, Archives Nationales, Minutier central, XCVII, 282, .
- Vente de l'Hôtel de Villemaré, Archives Nationales, BB305182, .
- Plan de la Chancellerie, Archives Nationales, O1 1551.
- Bail, , Archives Nationales, Minutier central, XCVII, 314, .
- Réquisition de l'agrandissement de l'aile de l'hôtel de Villemaré, Archives Nationales, Minutier central, LXXXVII, 1019, .
- Succession de François-Balthazar Dangé, estimation, le , Archives Nationales, Z1J 1031.
- Vente de l'Hôtel de Villemaré le par René-François Dangé d'Orsay à Philippe-Laurent de Joubert devant Maitre Goullet, Archives Nationales, Et. LXXXVII, 1174.
- Archives des Musées Nationaux, M4 1898, .
- Vente de l'ancien hôtel du Gouvernement militaire de Paris le , Archives de la ville de Paris, DQ1, carton 1.
Articles connexes
- Liste des propriétaires de l'hôtel de Villemaré
- Liste des locataires de l'hôtel de Villemaré
- Liste des hôtels particuliers parisiens
- Portail de l’architecture et de l’urbanisme
- Portail des monuments historiques français
- Portail de la France du Grand Siècle
- Portail de Paris