Cité scolaire Bertran-de-Born
La cité scolaire Bertran-de-Born est le regroupement du collège et du lycée général et technologique homonymes, situés à Périgueux, dans le département de la Dordogne.
Il tient son nom du célèbre chevalier troubadour Bertran de Born.
Situation académique
Le collège et le lycée Bertran-de-Born sont situés à Périgueux, dans la circonscription scolaire du même nom[1]. Bertran-de-Born fait partie des seize lycées du département de la Dordogne, parmi les dix publics[2].
La cité scolaire Bertran-de-Born comprend un collège et un lycée général et technologique. Ce dernier est labellisé « Internat d'excellence » et « Génération 2024 », des récompenses décernées par le ministère de l'Éducation nationale[3]. Il est immatriculé sous le no 0240024W et porte le numéro SIRET 192 400 240 00011[1].
Historique
Construction d'une école dans un ex-prieuré
L'établissement est installé dans une partie des locaux du prieuré de Petit Ligueux[4]. Construit vers 1617 à l'initiative de Suzanne III de Beaupoil de Saint-Aulaire, le prieuré servait d'annexe à l'abbaye bénédictine de Ligueux[5]. Les moniales en ont fait un pensionnat pour jeunes filles, puis une salle de classe[5].
Pendant la Révolution française en 1790, les trente-et-une religieuses quittent le prieuré pour rejoindre leurs familles[5]. Les locaux deviennent une prison accueillant environ 300 détenus[5]. Il fait ensuite office de casernement et d'entrepôt[4]. En 1797, le projet de transférer l'École centrale de Périgueux dans les locaux est évoqué, mais n'aboutit pas à cause de l'absence d'internat[4],[5]. Le , l'internat de l'École centrale emménage dans l'ex-prieuré[4]. La même année, le jury départemental de l'Instruction publique crée un pensionnat central qui ouvre l'année suivante[4],[5].
En 1803, les moniales du prieuré de Petit Ligueux s'engagent aux côtés de la ville de Périgueux, pour financer les premiers frais de la construction du lycée, soit 34 000 francs[4],[5]. La dépense est trop importante et le lycée n'est pas construit[4]. En 1804, l'École centrale disparaît et est remplacée par le pensionnat de Saint-Benoît, à partir de 1806[4].
Dirigé par l'abbé Loqueyssie et M. Robin, l'établissement obtient le titre de « collège communal de 1re classe » puis de « collège municipal », par décret impérial du 9 avril 1811[4]. En 1814, l'établissement compte alors 11 maîtres, 82 internes et 32 externes[4].
En 1834, le collège est agrandi avec la construction de l'actuel bâtiment principal[5], qui s'allonge du nord au sud, à l'est du cloître du prieuré[4]. Après être devenu un « collège royal » le par ordonnance de Louis-Philippe Ier[4], l'établissement devient aussi un lycée en 1848[5]. En 1852, l'architecte Élie Poncet Cruveiller n'achève que la moitié de la construction[4].
En 1865, le lycée obtient le statut de « lycée impérial »[4]. Il est étiqueté premier établissement du département en instruction secondaire. Les élèves internes sont pour la plupart boursiers impériaux ou communaux. Le système des études a pour but de préparer au baccalauréat et aux grandes écoles. Des classes préparatoires aux professions commerciales et industrielles et à la division élémentaire y sont annexées.[réf. nécessaire]
1870-1977 : nationalisation du lycée et enseignement public

Le statut de « lycée impérial » est abandonné en 1870 lors de la proclamation de la Troisième République[4]. L'établissement est alors renommé « Lycée de Périgueux » ou « lycée national »[6]. En 1877, l'établissement compte 352 élèves, dont 204 internes[6]. Le 24 janvier de cette année, le bureau de l'administration du lycée émet auprès de la ville de Périgueux le vœu de donner à l'établissement le nom de Maine de Biran ou de Michel de Montaigne[6]. La délibération du conseil municipal du 7 mars 1877 ne donne pas suite à cette demande[6].
Les classes étant trop à l'étroit dans le bâtiment principal, une annexe, le petit lycée (l'actuel bâtiment C), est construite en 1894 du côté de la rue Waldeck-Rousseau, pour accueillir des classes primaires[6]. L'agrandissement du lycée se poursuit dans les années 1950[6]. Jusqu'alors la propriété des Sœurs de la Visitation, l'achat d'un terrain situé au 2 rue Waldeck-Rousseau et au 4 rue Littré est voté le en conseil municipal, puis rendu effectif le 10 juillet[6]. L'architecte Lafaye gère la phase d'extension entre 1959 et 1962[6]. Le bloc scientifique (l'actuel bâtiment B) est construit en 1960, l'année-même où l'établissement devient « lycée d'État de garçons »[6]. En 1961, les classes primaires du petit lycée sont supprimées[6].
Le 2 juillet 1963, le conseil municipal de Périgueux fait une démarche auprès du ministre de l'Éducation nationale pour revoir le statut du lycée[6]. Ce dernier est transformé en lycée nationalisé par décret du (JO du )[6]. La mixité est instaurée officiellement en 1969, puis en 1975 pour l'internat[6]. Le 18 juin 1971, le conseil d'administration du lycée émet le vœu de donner le nom de Bertran de Born au lycée, décision adoptée par le maire Yves Guéna et le conseil municipal le 17 septembre suivant[6]. L'établissement est officiellement renommé le 23 mars 1973[6].
Depuis 1977 : un ensemble collège-lycée
Le collège Bertran-de-Born est fondé en 1977. L'ensemble collège-lycée est alors renommé « cité scolaire Bertran-de-Born » la même année[6]. Le bâtiment D (ou nouveau lycée) est construit à partir du 7 mars 1981, puis inauguré le 3 avril 1982[6].
Une grande période de rénovation a lieu entre 2000 et 2002, pour rénover le bâtiment B et réaménager l'ancienne chapelle en une salle polyvalente[6]. L'ensemble est inauguré le 14 février 2002[6].
Architecture
Bâtiments et équipements

La cité scolaire conserve le plan de l'ancien prieuré de Petit Ligueux, et notamment son cloître[5].
Au fil du temps, la cité scolaire s'est agrandie parallèlement au développement du lycée puis du collège : le bâtiment principal a été construit en 1834, puis il a fait l'objet d'extensions avec l'actuel bâtiment C (1894), le bâtiment B (1960, rénové en 2000) et le bâtiment D (1981-1982)[4],[6]. L'établissement est également doté d'un internat et d'un réfectoire, construits en 1993 (première pierre posée le 29 mars)[6].
La ville de Périgueux met à disposition de la cité scolaire le gymnase municipal, situé à l'angle de la rue Charles-Mangold et du boulevard Bertran-de-Born[4]. Construit à partir de février 1983 sur une décision prise en conseil municipal le , le gymnase est inauguré en septembre 1984[4]. Ses plans ont été dessinés par l'architecte Marc Robert[4]. Dans les années 1990, un gymnase spécifique au lycée a été accolé à celui de la ville[4].
L'établissement se situe à côté de la piscine municipale de Périgueux, construite en et inaugurée en [7]. Détruite en , principalement à cause de dégradations importantes[8], la piscine est reconstruite à partir du [9]. Le , le conseil municipal de Périgueux décide de nommer l'édifice la « piscine Bertran-de-Born », comme la cité scolaire voisine[10]. Le nouveau stade aquatique, dédié essentiellement aux scolaires et aux associations sportives, est inauguré par la ministre des Sports Valérie Fourneyron le [11].
Au sud du bâtiment principal, la cité scolaire dispose d'une salle polyvalente, rénové en 2001[6] et inaugurée le [4]. Elle a été construite dans la chapelle Sainte-Eulalie, l'ancien édifice religieux du lycée bâti sans art et en blocage entre 1846 et 1858[4]. La salle est rectangulaire (20 × 9 m) et bordée de baies aveugles et de nombreuses portes[4]. Elle est précédée à l'ouest d'un avant-corps (4 × 4 m) et suivie à l'est d'une abside semi-circulaire en pierre de taille, à laquelle est accolée une sacristie rectangulaire[4]. L'intérieur avait été aménagé par la marbrerie Lassoutanie, située rue Saint-Martin[4].

Plan du quartier Bertran-de-Born. 
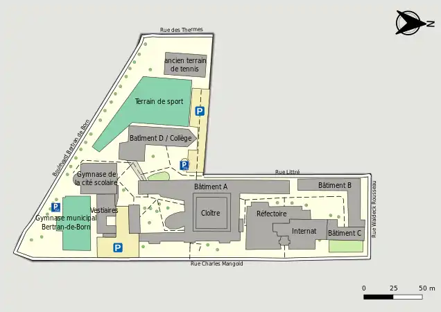
Plan restreint de la cité scolaire.
Monuments et œuvres d'art
Un monument érigé en mémoire des élèves mobilisés dans la guerre franco-allemande de 1870 est inauguré le 29 juillet 1875[6]. Pensé par l'architecte Gabriel Lagrange à partir d'un dessin d'Édouard Galy, le mémorial est toujours situé dans la cour du cloître et encadré par deux colonnes[6].
D'autres monuments aux morts ont été érigés par la suite : un deuxième pour la Première Guerre mondiale, situé à gauche dans le hall d'entrée principal et inauguré le 3 avril 1923 ; un troisième pour la Seconde Guerre mondiale, inauguré le 3 avril 1949 ; et un quatrième pour la guerre d'Algérie[6].
Une plaque commémorative à droite dans le hall d'entrée principal, rappelle le courage et les circonstances de la mort de Jean-René Lestin, mort le 25 septembre 1911 dans l'explosion du cuirassé Liberté[12].
La cité scolaire a également entre ses murs deux œuvres d'art : une de l'artiste toulousain Gilbert Privat, La Jeunesse (1959-1962)[6] ; une de l'artiste bordelaise Michèle Catalaa, inaugurée le 3 avril 1982[12].
Formations
L'établissement dispose d'une classe préparatoire pour l'École nationale vétérinaire de Toulouse entre 1954 et 1983[6]. En 1985, la première section du brevet de technicien supérieur (BTS) est ouverte[6]. Les premiers titulaires du BTS en informatique de gestion sortent en 1987[6]. Les classes péparatoires de mathématiques supérieures et de lettres ouvrent respectivement en 1992 et 1997[6].
Administration
Le premier proviseur de l'établissement retrouvé dans les archives est Léonce Sauveroche, qui assume ces responsabilités entre 1846 et 1850[12]. Les proviseurs suivants sont M. Ferrus entre 1850 et 1853, M. Catuffe entre 1853 et 1859, M. Gillet entre 1859 et 1865, M. Girard entre 1865 et 1866, puis M. Moulin entre 1866 et 1869[12].
M. Lasseigne assure la transition de l'établissement dans le public, entre 1869 et 1871[12]. Lui succèdent alors M. de Crozals entre 1871 et 1875, M. Fabre entre 1875 et 1880, M. Gusse entre 1880 et 1881, M. de Grandsaigne d'Hauterive entre 1881 et 1883, M. Letrait entre 1883 et 1895, M. Labroue entre 1895 et 1908, M. Duthil entre 1908 et 1914, M. Marcelly entre 1915 et 1920, M. Robert entre 1920 et 1934, M. Fabre entre 1935 et 1942, M. Gascoin entre 1942 et 1948, M. Grèze entre 1948 et 1956, M. Legendarme entre 1956 et 1965, puis M. Bard entre 1965 et 1969[12].
M. Le Pleux est le premier proviseur à avoir le nouveau collège sous sa responsabilité, entre 1969 et 1978[12]. Le poste est ensuite occupé par M. Boisvert entre 1978 et 1979, M. Couleuvre entre 1979 et 1980, M. Méot entre 1980 et 1982, puis M. Terrien entre 1982 et 2000[12].
Les proviseurs qui se sont succédé depuis 2000 sont : M. Alain Vaugrenard entre 2000 et 2005[12], M. Jacques Bovard entre 2005 et 2011[13], M. Jean-Philippe Ladevèze entre 2011 et août 2016[14], puis M. Guillaume Mouette d'août 2016 à septembre 2020[15].
M. Francis Cappe assure les fonctions de proviseur depuis septembre 2020[16]. Il est secondé d'Anne-Laure Pecrix-Rieu, principale adjointe au collège et d'Alain Vidal, proviseur adjoint au lycée[16].
Classement et résultats
En 2020, L'Internaute publie le taux de réussite du lycée Bertran-de-Born pour l'édition 2019 des épreuves du baccalauréat : il s'élève à 87,87 %[17], pour une moyenne nationale de 88,10 %[18]. Le Figaro classe le lycée Bertran-de-Born comme 4e lycée de Périgueux, 4e du département, 48e sur 87 au niveau académique et 990e au classement national[19].
| Année | % de réussite |
|---|---|
| 2008 | 83,91 |
| 2009 | 85,93 |
| 2010 | 86,63 |
| 2011 | 81,86 |
| 2012 | 89,09 |
| 2013 | 92,17 |
| 2014 | 90,95 |
| 2015 | 90,09 |
| 2016 | 92,11 |
| 2017 | 84,14 |
| 2018 | 93,92 |
| 2019 | 87,87 |
| Série L[17] | Série ES[17] | Série S[17] | Série STMG[17] | ||||
|---|---|---|---|---|---|---|---|
| Année | % de réussite | Année | % de réussite | Année | % de réussite | Année | % de réussite |
| 2008 | 77,78 | 2008 | 80,65 | 2008 | 90,16 | 2008 | 81,82 |
| 2009 | 81,25 | 2009 | 85,42 | 2009 | 90,16 | 2009 | 86,21 |
| 2010 | 90,00 | 2010 | 91,38 | 2010 | 85,19 | 2010 | 81,82 |
| 2011 | 91,67 | 2011 | 80,60 | 2011 | 90,63 | 2011 | 71,67 |
| 2012 | 83,33 | 2012 | 91,43 | 2012 | 88,41 | 2012 | 88,89 |
| 2013 | 85,29 | 2013 | 92,86 | 2013 | 96,83 | 2013 | 89,06 |
| 2014 | 83,87 | 2014 | 94,23 | 2014 | 98,46 | 2014 | NC |
| 2015 | 92,59 | 2015 | 100,00 | 2015 | 90,00 | 2015 | NC |
| 2016 | 93,62 | 2016 | 93,75 | 2016 | 95,71 | 2016 | NC |
| 2017 | 84,31 | 2017 | 94,20 | 2017 | 75,96 | 2017 | NC |
| 2018 | 94,12 | 2018 | 94,19 | 2018 | 97,20 | 2018 | NC |
| 2019 | 90,70 | 2019 | 93,85 | 2019 | 83,33 | 2019 | NC |
Vie étudiante
En 1892, Roger Dantou fonde les Bleuets, une société sportive pour les élèves du lycée de garçons Bertran-de-Born[20]. Actifs jusqu'en 1950, ils jouent notamment au rugby et sont la première association à en faire à Périgueux[21]. Ils pratiquent aussi de la boxe, du bâton de combat, du trampoline, des échasses, du tir sportif, de la course à pied et de la corde de traction[20].
Personnalités liées à la cité scolaire
- Anciens élèves
- Léon Bloy (1846-1917)[22]
- Émile Goudeau (1849-1906)[4]
- Georges Goursat, dit Sem (1863-1934)
- Félix Gadaud (1875-1973)
- Albert Cahuet (1877-1942)
- Yvon Delbos (1885-1956)
- Pierre Arpaillange (1924-2017)[22]
- Claude Bébéar (1935-)[22]
- Christian Frémont (1942-2014)[22]
- Xavier Darcos (1947-)[22],[23]
- Véronique Malbec (1958-) [24]

Léon Bloy. 
Émile Goudeau. .jpg.webp)
Sem. 
Félix Gadaud. 
Yvon Delbos. 
Claude Bébéar. 
Xavier Darcos.
Notes et références
- Olivier Dugrip (dir.) (ill. Olivier Sauvaitre), Répertoire des établissements publics du second degré 2013/2014, Bordeaux, Académie de Bordeaux, , 126 p., p. 1 et 9.
- Jean-Louis Poirier et Jean-François Cuisinier, Évaluation de l'enseignement dans l'académie de Bordeaux, Bordeaux, Académie de Bordeaux, , 134 p. (lire en ligne [[PDF]]), p. 43.
- « Lycée Bertran de Born », sur ONISEP (consulté le ).
- Penaud 2003, p. 69.
- Penaud 2003, p. 394-395.
- Penaud 2003, p. 70.
- Penaud 2003, p. 400.
- Pierre-Manuel Réault, « La nouvelle piscine Lakanal ouvrira en 2014 », Sud Ouest, (lire en ligne).
- Pierre-Manuel Réault, « Tout ce qu'il faut savoir sur l'agglomération périgourdine », Sud Ouest, (lire en ligne).
- Adrien Vergnolle, « Piscine Bertran-de-Born : un nom et un coût », Sud Ouest, (lire en ligne).
- Hervé Chassain, « La fête s'annonce à la nouvelle piscine de Périgueux », Sud Ouest, (lire en ligne).
- Penaud 2003, p. 71.
- Alain Bernard, « Départ du proviseur rénovateur du lycée », Sud Ouest, (lire en ligne).
- « Un nouveau proviseur à Bertran-de-Born », Sud Ouest, (lire en ligne).
- Caroline Pomès, « Dordogne : de Pékin à la tête d'un lycée périgourdin », sur France Bleu Périgord, (consulté le ).
- Juliette Laferrere, « Francis Cappe, nouveau proviseur de B-de-B », Dordogne libre, no 22785, , p. 4 (lire en ligne).
- « Lycée Bertran de Born (Périgueux) : classement 2020 et taux de réussite au bac », sur L'Internaute, (consulté le ).
- Fanny Thomas, « Le baccalauréat 2019 - Session de juin », sur Ministère de l'Éducation nationale, (consulté le ).
- « Lycée Bertran de Born (Périgueux) - Classement des lycées », sur Le Figaro, (consulté le ).
- Penaud 2003, p. 75.
- Penaud 2003, p. 91-92.
- Alain Vaugrenard, « Le lycée et la ville », dans Jean-Pierre Augustin et Michel Favory, 50 Questions à la Ville, Pessac, Maison des Sciences de l'Homme d'Aquitaine, coll. « Politiques urbaines » (no 15), , 458 p. (ISBN 9782858925254, lire en ligne), p. 227-233.
- Xavier Darcos, Dictionnaire amoureux de l'école, Éditions Plon, (ISBN 978-2-259-25145-7, lire en ligne), p. 150.
- « Biographie de Véronique Malbec », sur whoswho.fr, Who's Who in France (consulté le ).
Annexes
Bibliographie
: document utilisé comme source pour la rédaction de cet article.
- Guy Penaud, Le grand livre de Périgueux, Périgueux, Éditions de la Lauze, , 601 p. (ISBN 2-912032-50-4), p. 68-71

- Hélène Mousset, « Collège, lycée Bertran-de-Born », dans Hervé Gaillard et Hélène Mousset, Périgueux, vol. 2 : Sites et Monuments, Pessac, Éditions Ausonius, coll. « Atlas historique des villes de France » (no 53), (ISBN 978-2-35613241-3), p. 525-528
- Martine Balout (photogr. Rémi Philippon), « La cité scolaire Bertran de Born, collège et lycée impérial », dans Périgueux insolite, La Crèche, La Geste, coll. « Beau petit pays », (ISBN 979-10-353-0294-8), p. 85-90
Liens externes
- Site officiel
- « Collège Bertran de Born », sur le site du ministère de l'Éducation nationale
- « Lycée Bertran de Born », sur le site du ministère de l'Éducation nationale
- Portail des écoles
- Portail de l'agglomération de Périgueux