Chapelle Sainte-Catherine de Lizio
La chapelle Sainte-Catherine et sa fontaine sont situées sur la commune de Lizio dans le Morbihan[2].
Historique
Dès l’époque du néolithique, puis de la protohistoire (âge du bronze et âge du fer), de nombreux lieux de peuplement ont existé en Armorique comme l’ont montré les campagnes d’archéologie aérienne.
À l’époque des gaulois, des chemins reliaient les villages entre eux et aux capitales des différents peuples. Après la conquête de la Gaulle par les Romains, ces chemins ont été conservés ou améliorés pour entrer dans le réseau des nouvelles voies romaines.
On ne connait pas précisément l'histoire des Templiers de Lizio mais d'après l'histoire générale de l'ordre du Temple, mais ils ne purent s'installer à Lizio qu'entre 1129 (concile de Troyes) et 1312 (suppression de l'ordre par le Pape Clément V).
Vers 1200, les Templiers, installés non loin, fondent à l'emplacement de la trève de Lizio, en bordure de la voie romaine, un petit prieuré qui reçoit les pèlerins sur le chemin de Saint-Jacques-de-Compostelle. La chapelle est dédiée à Sainte-Catherine d'Alexandrie comme l'est le monastère dans le désert du Sinaï.
La chapelle, ruinée par la Guerre de 100 ans, est abandonnée pendant plusieurs années.
En 1616, la chapelle est reconstruite, sous l'impulsion de Charles Laurencin, prêtre hospitalier de l’Ordre de Saint-Jean de Jérusalem, selon le plan primitif, propre aux constructions des Templiers[3].
L'ensemble, composé de la chapelle et de sa fontaine, fait l’objet d’une inscription au titre des monuments historiques depuis le [2].
Description
La visite peut commencer par la pierre de direction, située à environ 200 mètres vers l'ouest, en bordure de la route. Elle porte plusieurs inscriptions, aux extrémités ouest et est, les noms des villes et villages à proximité, et au centre « Chemin du ciel et de 1763 ».
Le tour de l'enclos commence à l'entrée située près de la route, à l'angle nord-ouest[4]. Après la sacristie, en continuant à faire le tour de l'enclos, on constate que le vitrail oriental de la chapelle est obstrué symboliquement par une maçonnerie.
Puis, on arrive à la fontaine Sainte-Catherine : le fond du bassin où l'eau de la source s'épand comporte des dalles de granit bien séparées des dalles de schiste. à l'intérieur de la fontaine, il y a une niche avec une petite statue représentant Sainte-Catherine et 3 nombres gravés : en bas 16 et 61 séparés par un écu, en haut 1861 et à droite 1824.
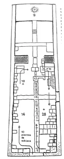
Le mur de l'enclos est interrompu sept fois par des passages obstruées par des plaques verticales.
Un de ces passages obstrué, au midi, est accessible par un escalier de sept marches qu'Auguste Coudray relie à l'ouvrage de Raymond Lulle «Liber de ascensu et descensu intellectus».
La façade occidentale de la chapelle semble simple avec son pignon triangulaire, sa croix au sommet du triangle et ses deux colonnettes à chaque extrémité : la colonnette au nord représente une croix, celle au sud une colonnette toujours debout malgré son sommet brisé. Les angles du triangle lumineux qui surplombe la porte d'entrée occidentale ont pour valeurs 108°, 36° et 36°. Au centre de ce triangle, on a sculpté une coquille Saint-Jacques pour signifier au pèlerin qu'il sera accueilli. Au-dessus, l'oculus est occupé par un chrisme.

En entrant dans la chapelle par la porte d'occident, la pierre du seuil franchie, on accède au «carré long» du grand narthex. Au sol, le dallage est remarquable.] En premier lieu, les 63 dalles de schiste invitent à suivre un chemin, à prendre vers le nord en suivant le mur puis à poursuivre pour revenir par les dalles du midi jusqu'au point de départ. En prenant l'allée centrale vers le chœur, on va arriver à un premier assemblage de dalles de granit représentant une clé puis à un second représentant une marelle[3].
Le narthex est séparé de la nef carrée par un arc en ogive.
Dans la nef, sont présentes au nord la statue de Saint-Fiacre et au sud celle de Saint-Jean-Baptiste.
L'autel est surmonté par un retable comprenant les 4 colonnes couronnées par les quatre éléments (eau, air, terre et feu), les statues de Sainte-Catherine au manteau d'or et de Saint-Jean l'évangéliste tenant selon la tradition un livre fermé, le tableau avec Sainte-Catherine.
À la base de l'autel, au centre du triangle rayonnant dont la pointe est dirigée vers le sol sont tracées trois chiffres 7, le premier étant retourné. On peut aussi y voir trois fois la lettre de l'alphabet hébreu resh, avec là aussi la lettre inversée, mais il s'agira alors de la dernière (lecture de droite à gauche). Le triangle est entouré par une nuée et 12 rayons lumineux en émanent. L'ensemble est entouré par un cercle doré.
Les différents objets vont être éclairés par les rayons du soleil selon les jours de l'année et les heures[3].
À l'intérieur de l'enclos, on voit deux ifs, un calvaire et la galerie attenante à la chapelle. Le calvaire montre plusieurs inscriptions de chiffres et de lettres majuscules gravées dans le socle : 17 IHS 08 R.VEILLUX, FABRIC, QUE, MEL FPL. La galerie est soutenue par 3 colonnes, une avec une base carrée, une avec une base octogonale et une avec une base circulaire et l'inscription 1616 sur son chapiteau[4].
Le substratum du site est un massif granitique. Sept veines d'eau traversent la chapelle : quatre perpendiculaires à l'axe de la chapelle, une dans l'axe de la chapelle et deux en biais. Ces courants d'eau passent à plusieurs mètres de profondeur. Trois courants telluriques ont été identifiés : l'uranium, le sélénium et l'argent double[4].
Références
- « Chapelle Sainte-Catherine, Lizio », sur topic-topos.fr (consulté le )
- « Chapelle et fontaine Sainte-Catherine », notice no PA00091373, sur la plateforme ouverte du patrimoine, base Mérimée, ministère français de la Culture
- Auguste Coudray, Langages oubliés de compagnons et maîtres d'oeuvre, A. Coudray] [Mille chemins ouverts, , 160 p. (ISBN 978-2-9511144-0-1)
- Bernard RIO, Les portes du sacré, 33610 Canéjan, Les Editions Ar Gedour, , 500 p. (ISBN 978-2-9565987-8-7), p. 81
Voir aussi
Articles connexes
Liens externes
"Topic-Topos" - Chapelle Sainte-Catherine, Lizio
- Portail des monuments historiques français
- Portail de l’architecture chrétienne
- Portail du Morbihan