Basilique Saint-Clément-du-Latran
La basilique Saint-Clément-du-Latran (en italien : Basilica di San Clemente al Laterano) est située à Rome et dédiée au pape saint Clément Ier.
| Basilique Saint-Clément-du-Latran | |
Clocher (XVIIe siècle) et façade (XVIIIe siècle). | |
| Présentation | |
|---|---|
| Nom local | Basilica di San Clemente al Laterano |
| Culte | Catholique romain et culte de Mithra aux IIIe et IVe siècles |
| Type | Basilique |
| Rattachement | Archidiocèse de Rome |
| Début de la construction | IVe siècle |
| Site web | www.basilicasanclemente.com |
| Géographie | |
| Pays | |
| Ville | Rome |
| Coordonnées | 41° 53′ 22″ nord, 12° 29′ 51″ est |
Sur le site se trouve un complexe de bâtiments sur plusieurs niveaux, dont trois sont dégagés : le niveau archéologique inférieur date de l'Empire romain, avec un mithraeum dédié à Mithra et un autre bâtiment ; au-dessus, une église du Ve siècle, détruite par les Normands ; enfin, au niveau supérieur, la basilique actuelle, construite au Moyen Âge, peu avant l'an 1100.
Histoire
Le titulus Clementis et la basilique de Saint-Clément
La désignation titulus Clementis (littéralement propriété de Clément) apparaît pour la première fois dans les actes de l'évêque de Rome Sirice (384-398) et désigne le lieu de culte correspondant à la future basilique de Saint Clément. Le titulus Clementis fait alors partie des 25 tituli, églises existant à l'intérieur de Rome, identifiées lors des conciles romains de 499 et 595[1].
La basilique antique est le lieu de conciles présidés par les papes Zosimus (417) et Symmaque (499). En 533, Mercurius, prêtre du titulus Clementis est élu pape, et prend le nom de Jean II (533-535).
Le dernier événement majeur ayant lieu dans la basilique inférieure est l'élection en tant que pape du cardinal de Saint-Clément, Rainerius, sous le nom de Pascal II, en 1099.

En 1084, Rome est mise à sac par les troupes du normand Robert Guiscard. L'ancienne basilique est endommagée et menace ruine. Anastase, cardinal titulaire de Saint-Clément, décide en 1100 de la reconstruire. Après récupération des éléments de décor en marbre, les anciennes nefs sont comblées de remblais et une nouvelle basilique est reconstruite par-dessus les vestiges. Ensevelie, l'ancienne basilique tombe dans l'oubli pour sept siècles, jusqu'aux fouilles menées par le père Joseph Mullooly (en)[2].
La tradition qui veut qu'une communauté de Bénédictins ait desservi Saint-Clément à partir du VIe siècle se fonde sur une lecture erronée des Dialogues de Grégoire le Grand (590-604). Ce n'est qu'en 1403 que le pape Boniface IX confie Saint-Clément à la Congrégation Augustinienne de Saint Ambroise de Milan, dite plus simplement des moines ambrosiens. Après la dissolution de cette congrégation en 1643, Saint-Clément est confié aux Dominicains de Saint Sixte, puis cédé en 1667 en propriété perpétuelle à l'Ordre dominicain. En 1677, Saint-Clément est donné aux Dominicains d'Irlande, lorsque l'Angleterre proscrit l'Église catholique irlandaise et expulse l'ensemble des membres du clergé. Le pape Urbain VIII leur donne refuge à Saint-Clément, où ils s'installent, gérant une résidence pour l'étude et l'enseignement des prêtres à Rome. La basilique est depuis cette date gérée par des Dominicains irlandais[3].
À partir de 1857, le père Joseph Mullooly (en) dégage le bas-côté nord de l'ancienne basilique, jusqu'au mur ouest. De là, en contournant les fondations de l'abside, il atteint l'ancienne nef sud en 1861, puis réussit à déblayer entre 1862 et 1870 toute la partie centrale de la basilique souterraine et, à un niveau inférieur d'époque romaine, une partie du bâtiment contenant un mithraeum. L'annexion des États pontificaux par Victor-Emmanuel II en 1870 et l'inondation permanente du niveau romain interrompirent ces fouilles, qui ne purent reprendre qu'après le creusement par le père Louis Nolan d'un tunnel de drainage entre 1912 et 1914. Vingt-cinq ans plus tard, le père Pius O'Daly dégagea une partie des pièces du bâtiment romain situé sous l'ancienne basilique. Enfin en 1945, le père Raymond Dowdall reprit les dégagements le long de la nef nord de la basilique inférieure[4].
Traditions hagiographiques
Selon la vision traditionnelle de l'histoire des débuts du christianisme à Rome, les premiers chrétiens célébraient le culte dans des maisons privées, appelées « églises domestiques » par les spécialistes. Ces anciens lieux de culte auraient évolué au fil des siècles, d'églises domestiques dans une maison privée, en église, puis en basilique, reflétant l'émergence officielle de l'Église à partir du IVe siècle, tandis que le nom des propriétaires se serait conservé depuis le Ier siècle dans celui des tituli[5].
Selon cette vision, le titulus Clementis était une maison appartenant à un certain Clément, chrétien du Ier siècle et martyr. Certains érudits attribuèrent cette maison au consul romain Titus Flavius Clemens[6], cousin de l'empereur Domitien et exécuté en 95 pour « impiété, athéisme et mœurs juives »[7],[8]. Par ailleurs, Jérôme de Stridon mentionne en 392 dans sa Vie de Clément, troisième ou quatrième évêque de Rome, l'existence d'une église construite à Rome qui porte encore son nom[9]. On a aussi suggéré que cet évêque de Rome aurait été un esclave de la maison de Flavius Clément. Sa vie et sa mort sont inconnues, on ignore même s'il fut martyr, mais une tradition tardive et apocryphe rapporte qu'il fut exilé en Tauride, et noyé dans le Pont-Euxin. Ses reliques présumées ont été ramenées de Tauride à Rome par saints Cyrille et Méthode en 867, et enterrées dans la basilique Saint-Clément[10].
Interprétations du titulus Clementis
Les découvertes archéologiques du niveau antique ayant été menées par des Dominicains, leur interprétation refléta la vision hagiographique en vigueur, ils identifièrent donc le bâtiment du Ier siècle sous la basilique ancienne comme le titulus Clementis, l’habitation particulière d’un chrétien du Ier siècle nommé Clément[6]. Mgr Edouard Junyent qui publie cette thèse en 1932 réfute toutefois l'attribution de cette possession à l'évêque de Rome Clément Ier, dont le culte ne fut associé à Saint-Clément que plus tard, et se refuse faute d'éléments probants à l'attribuer à Flavius Clemens[11].
Plus récemment, Charles Pietri a réfuté ces raisonnements qui rajeunissaient les tituli pour les dater du Ier siècle et correspondre ainsi à la théorie, montrant la fragilité de leurs présupposés. La notion de titulus à caractère chrétien n'apparaît pas avant le IVe siècle, probablement lors des restitutions de propriétés confisquées lors des dernières persécutions, et les fouilles ont démontré que ces tituli/églises s'établissaient en superposition d'édifices antérieurs aux fonctions les plus diverses, et rarement des habitations[5]. Dans le cas de Saint-Clément, le titulus Clementis et la basilique furent édifiés par-dessus un bâtiment industriel constitué d'une série d'ateliers, désaffectés à la fin du IIIe siècle[12].
Les trois niveaux de bâtiments
Niveau inférieur
Au niveau le plus bas, les fouilles ont révélé deux bâtiments d'époque romaine, séparés par une ruelle étroite d'environ 70 cm et désormais accessibles : un grand bâtiment probablement destiné à servir d'entrepôt (horreum) et un bâtiment d'habitation (insula), plus connu sous le nom de Mithraeum. En dessous, des traces de bâtiments antérieurs ont été trouvées, qui n'ont cependant pas été suffisamment fouillées et étudiées pour pouvoir être comprises dans leur ensemble[13].
L'horreum ou l'hôtel de la Monnaie

Le bâtiment principal, sur lequel est fondée la basilique, est constitué d'une grande structure rectangulaire (parfois attribuée à la période républicaine), comportant à l'origine deux étages, construite au Ier siècle apr. J.-C. avec de grands blocs de tuf. Ce bâtiment est divisé en cellules couvertes d'une voûte en berceau placée sur le périmètre, et d'une vaste cour intérieure (encore non fouillée) ; la largeur du bâtiment est de 29,60 m (environ 100 pieds romains), tandis que sa longueur exacte n'a pas encore été déterminée.

La forme et la structure du bâtiment ont conduit à l'hypothèse qu'il s'agissait d'un horreum, c'est-à-dire un entrepôt, construit pour desservir le quartier voisin des Ludi (les Jeux), construit au Ier siècle autour du Colisée[13]237. Dans l'horreum se trouvent aussi les fondations des deux basiliques situées au-dessus. Dans les années 1930, une canalisation a été établie pour drainer l'eau de l'entrepôt vers un égout précédemment construit[14]. D'après la technique de construction, cet édifice peut être daté du début du Ier siècle av. J.-C., avant le grand incendie de 64 . Pour Filippo Coarelli, ces salles pourraient être celles d'un hôtel de la Monnaie, construit après l'incendie de l'hôtel de la Monnaie du Capitole dans les années 80.
La maison d'habitation et le Mithraeum

Le deuxième bâtiment, situé au-delà de l'allée, consistait en une insula, c'est-à-dire une maison divisée en plusieurs appartements disposés autour d'une cour intérieure centrale, construite en opus latericium vers le Ier siècle. Dans cette cour, entre la fin du IIe et le début du IIIe siècle, fut construit un Mithraeum, petit temple dédié au culte du dieu Mithra, d'origine orientale et importé à Rome très probablement avec les légions revenant du campagnes en Asie Mineure, vers 67 av. JC[15]. Une statue du Bon Pasteur a été retrouvée dans le Mithraeum.
Dans le deuxième quart du IIIe siècle, la cour de la maison d'habitation est transformée en mithraeum : les portes qui la surplombent sont alors fermées et une voûte en berceau surbaissée est créée, avec un plafond décoré d'étoiles, qui font allusion à la symbolique du mithraïsme. Au fond, une niche a été créée où se trouvait la statue du dieu Mithra, avec un autel, toujours présent, et la Tauroctonia (le dieu Mithra sacrifiant un taureau cosmique qui, en mourant, donne vie à l'univers) sur le côté principal, et les écrous Cautes et Cautopates sur les côtés. Le long des murs se trouvent les habituels bancs en brique, où s'asseyaient les fidèles. Onze ouvertures dans les murs symbolisent les signes astrologiques liés au culte mystérieux de Mithra, divinité syncrétiste irano-babylonienne associée au soleil.
Le sanctuaire du dieu Mithra a été découvert en 1861.
Une deuxième maison dont l'entrée est inconnue, située derrière la première, date de la seconde moitié du IIe siècle apr. J.-C. Sur ce qui était le rez-de-chaussée se trouvent quatre rangées de pièces, dont deux avec des voûtes décorées de stuc ; il y a aussi quatre couloirs entourant une cour intérieure ; un escalier mène à l'étage supérieur dont il ne reste que le mur oriental et quelques murs. Peut-être le rez-de-chaussée se trouvait-il déjà à un niveau souterrain, ce qui placerait l'entrée au premier étage, comme semble également le suggérer la présence de la voûte en berceau dans le bâtiment en tuf qui soutenait l'étage.
La première basilique
Les fouilles réalisées par le père Joseph Mullooly à partir de 1857 révèlent la première basilique oubliée[16] sous la basilique du XIIe siècle. Un escalier construit en 1866 permet d'y descendre.
Les écrits de saint Jérôme en 392 témoignent d'une église dédiée à saint Clément, sans pouvoir affirmer avec certitude qu'il s'agit de celle-ci. Après que le christianisme est devenu religion d'État à Rome en 390, la petite église est agrandie par l'acquisition de l'insula adjacente et d'autres immeubles voisins. Les architectes travaillent sur un complexe de salles et de cours, construisant une nef centrale sur le site de l'église primitive et une abside débordant sur l'ancien mithraeum. La nouvelle église est consacrée à Clément Ier, troisième ou quatrième évêque de Rome, sans doute sous le pontificat de Sirice[17].
Des restaurations sont entreprises après le tremblement de terre de 847 et vers 1080-1099[18]. L'une des plus grandes collections de peintures murales du Moyen Âge précoce, après celles de l'église Sainte-Marie-Antique, se trouve dans la basilique basse de Saint-Clément[19].

Vers la fin du XIe siècle, la famille de Rapiza offre deux fresques qui décorent le narthex.
L'une représente la survie miraculeuse d'un enfant surpris par la marée dans la mer d'Azov, où selon la tradition fut noyé saint Clément ; la famille du donateur est figurée en dessous. La deuxième fresque illustre le transfert à Saint-Clément des reliques recueillies par Cyrille et Méthode[20]. Parmi les fresques de la nef centrale, une raconte la légende d'Alexis de Rome ; une autre, la plus connue, montre saint Clément disant la messe, et illustre l'épisode l'opposant aux serviteurs du noble Sisinus dont il avait converti l'épouse. Sisinus et ses serviteurs, qui tentent d'expulser Clément, s'interpellent en italien médiéval, ce qui constitue un des témoignages les plus anciens du passage entre le latin et l'italien[21].
Au cours des siècles suivants, Saint-Clément devient une vitrine pour les sculpteurs et les artistes d'église profitant des largesses impériales.
- Fresques de la basilique inférieure



— Sisinnius : « Fili de le pute, traite, Gosmari, Albertel, traite. Falite dereto co lo palo, Carvoncelle! »
— Clément : « Duritiam cordis vestris, saxa traere meruistis ».
Traduction :
— Sisinnius : « Fils de putes, tirez ! Gosmario, Albertello, tirez ! Pousse par derrière avec la perche, Carvoncello ! »
— Clément : « À cause de la dureté de votre cœur, vous avez mérité de traîner des pierres ! ».
La deuxième basilique

La basilique actuelle est reconstruite par le cardinal Anastase, vers 1099-1120, après l'incendie de la première église au cours du sac de la ville par les Normands de Robert Guiscard en 1084[22]. Aujourd'hui, c'est l'une des églises les plus richement ornées de Rome.
![]() |
![]() | |
Atrium ou péristyle de la basilique. |
Porte d'entrée latérale. |
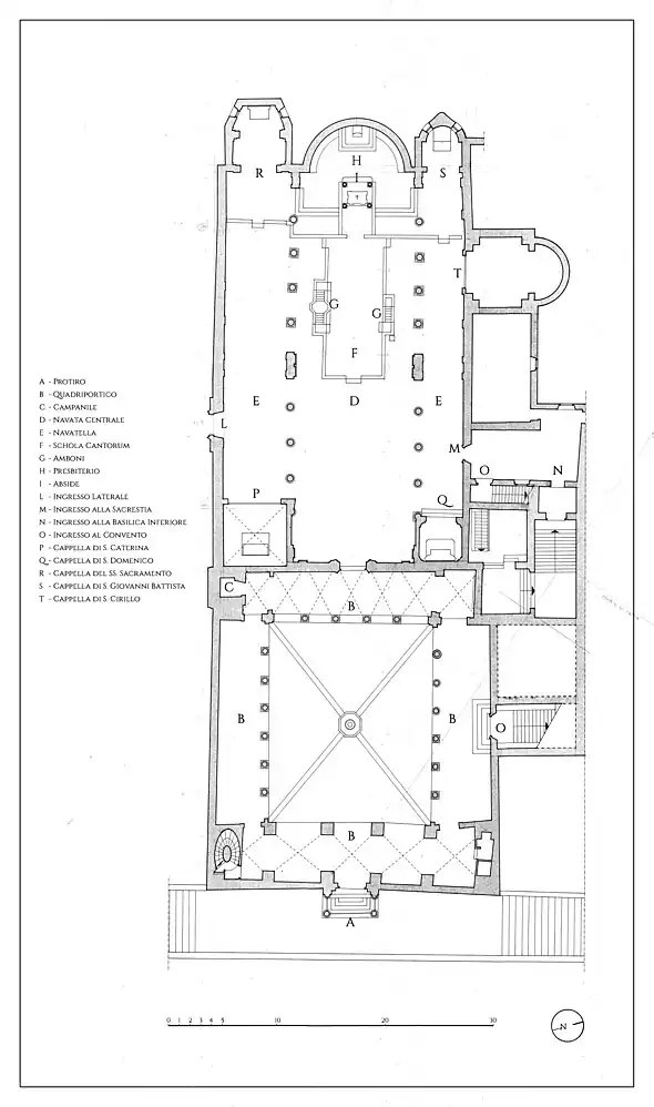
Son entrée d'origine (remplacée par une entrée latérale) donne sur une cour entourée d'un péristyle (B sur le plan), formant l'unique atrium médiéval qui subsiste encore à Rome[23]. Il sert aujourd'hui de cloître entouré des bâtiments conventuels. Au fond se trouve la sobre façade de Stefano Carlo Fontana, supportée par des colonnes antiques, et le petit campanile.

La basilique a trois nefs divisées par des arcades sur des colonnes antiques de granite ou de marbre, avec un pavage aux incrustations cosmatesques. La schola cantorum du XIIe siècle (F sur le plan) est délimitée par des panneaux en marbre blanc récupérés de la basilique d'origine. Ils datent du Jean II (533-535), dont ils portent le monogramme[24]. Derrière elle, dans le chœur, un ciborium (H sur le plan) composé de quatre colonnes gris-violet indique l'emplacement du reliquaire de Clément et d'Ignace d'Antioche situé dans la crypte[25].

La cathèdre (siège épiscopal) se trouve dans l'abside, couverte de mosaïques sur le thème du Triomphe de la Croix, thème fort des mosaïques romaines du XIIe siècle. On aperçoit entre autres sur cette mosaïque les quatre évangélistes qui entourent le Christ, de gauche à droite, Marc, Mathieu, Jean et Luc, respectivement représentés par le lion, l'ange, l'aigle et le taureau. Juste en dessous sont représentés saint Pierre et saint Paul (identifiés par « agios paulus » et « agios petrus »). Dans la partie basse de la mosaïque, les agneaux représentent les apôtres et le Christ au centre (agneau auréolé) ; de part et d'autre figurent les villes de Bethléem et de Jérusalem[26].
Sur un mur de la cour se trouve une plaque apposée par le pape Clément XI faisant l'éloge de saint Clément : « Cette ancienne église a résisté aux ravages des siècles ». Clément entreprend des restaurations sur la vénérable structure, qu'il trouve en mauvais état. Il choisit Stefano Carlo Fontana, neveu de l'architecte Carlo Fontana, qui érige une nouvelle façade, terminée en 1719[27]. Le plafond sculpté à caissons dorés de la nef et des bas-côtés date de ce moment, tout comme le décor en stuc, les chapiteaux ioniques et les fresques.
Dans une chapelle latérale est érigé un sanctuaire avec le tombeau de saint Cyrille qui a créé l'alphabet glagolitique et christianisé les Slaves. Le pape Jean-Paul II y venait parfois pour prier pour la Pologne et les pays slaves. La chapelle orientale conserve une Madone de Giovanni Battista Salvi da Sassoferrato.
Tombeaux et reliques
- Tombeau de saint Clément de Rome
- Tombeau de saint Ignace d'Antioche
- Reliques des saints Cyrille et Méthode
Notes et références
- Victor Saxer, « Charles Pietri et la topographie paléochrétienne de Rome », Mélanges de l'Ecole française de Rome, Antiquité T. 111, N°2, 1999, pp. 602-603 en ligne sur Persée
- Boyle 1976, p. 13
- Boyle 1976, p. 15-16
- Boyle 1976, p. 43
- Saxer 1999, p. 599-600
- Boyle 1976, p. 12
- Dion Cassius, Histoire romaine, livre 67, p 195
- Paul Petit, Histoire générale de l’Empire romain, Seuil, 1974, (ISBN 2020026775), p. 120
- Jérôme de Stridon, De viris illustribus, XV Vie de Clément
- Boyle 1976, p. 6-9
- Jacques Zeiller, In: Revue des Études grecques, tome 48, fascicule 224, Janvier-mars 1935, p. 207-208
- Coarelli 1994, p. 137-138
- Federico Guidobaldi, Il complesso archeologico di San Clemente, Rome, 1978.
- John M. Cunningham, Capitolo Gli Horrea, p. 62
- Boyle, p. 71
- "Abandonnée et oubliée jusqu'à ce que son existence soit redécouverte par les fouilles archéologiques dans le milieu du dix-neuvième siècle", remarque John Osborne, dans « The "Particular Judgement" : an early medieval wall-painting in the lower church of San Clemente, Rome » "The Burlington Magazine no 123 939 (Juin 1981:335-341) p. 335.
- (it) G. B. De Rossi, « I monumenti scoperti sotto la basilica di San Clemente », Bulletino di archeologia Cristiana, , pp.147-148 (lire en ligne)
- Barclay Lloyd 1986, p. 197-223.
- Des fresques du Xe siècle et des fragments de fresques du milieu du huitième siècle, John Osborne, « Early Medieval Painting in San Clemente, Rome: The Madonna and Child in the Niche » Gesta 20.2 (1981:299-310).
- Boyle 1976, p. 49
- Boyle 1976, p. 55-58
- Barclay Lloyd 1986, p. 197.
- Boyle 1976, p. 19.
- Boyle 1976, p. 23.
- Boyle 1976, p. 24.
- Boyle 1976, p. 31.
- John Gilmartin, "The Paintings Commissioned by Pope Clement XI for the Basilica of San Clemente in Rome" The Burlington Magazine 116 no 855 (juin 1974, pp. 304-312) p. 304.
Voir aussi
Bibliographie
- (en) Joan Barclay Lloyd, « The building history of the medieval church of S. Clemente in Rome », The Journal of the Society of Architectural Historians, no 45.3, , p. 197-223
- Léonard Boyle, Petit guide de Saint-Clément, Rome, Rome, Collegio San Clemente, (1re éd. 1963)
- Filippo Coarelli (trad. Roger Hanoune), Guide archéologique de Rome, Paris, Hachette, (1re éd. 1980), 350 p. (ISBN 2-01-235428-9)
- (en) Joseph Mullooly, Saint Clement : Pope and Martyr and His Basilica in Rome, Kessinger Publishing, LLC, (1re éd. 1873) (ISBN 978-0-548-77854-8)
- (it) Mgr Edouard Junyent, Il titolo di San Clemente in Roma, Rome, 1932, pp. 66–81
- Notes de lecture de Jacques Zeiller, In: Revue des Études Grecques, tome 48, fascicule 224, Janvier-mars 1935, pp. 207–208
- Victor Saxer, « Charles Pietri et la topographie paléochrétienne de Rome », Mélanges de l'Ecole française de Rome. Antiquité, t. 111, no 2, , p. 597-608 (lire en ligne)
Articles connexes
- Liste des églises de Rome
- Liste des basiliques de Rome
- Saint-Clément (titre cardinalice)
- Friedensirche (Potsdam) (inspirée de la basilique Saint-Clément)
Liens externes
- (en + it) Site officiel, Basilica San Clemente
- Présentation de la basilique Saint-Clément-du-Latran, Italie-Découverte
- (en) Fiche d'information sur G-Catholic.org
- Portail de l’architecture chrétienne
- Portail du catholicisme
- Portail de Rome
- Portail de l’archéologie
- Portail du haut Moyen Âge



